- 価格
- 2,500万円
- 中古戸建
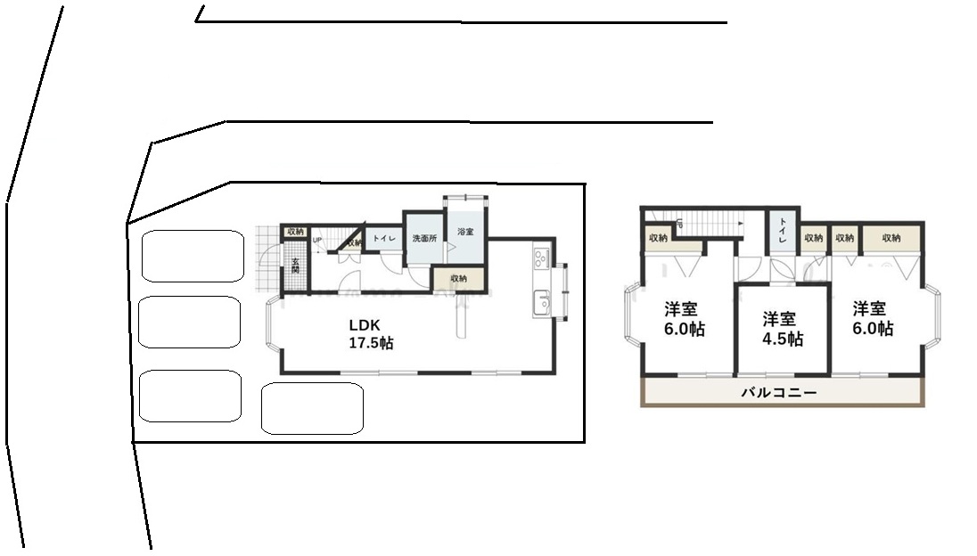
- 間取
- 3LDK
|
|
| 所在地 | 東京都あきる野市草花 |
|---|---|
| 交通 | JR青梅線福生駅 バス(市民球場 乗8分 停歩5分) |
| 築年月 | 平成8年4月 | 新築/中古 | 中古 |
|---|---|---|---|
| 土地面積 | 140.58m² | 土地面積計測方式 | |
| 建物面積 | 84.90m² | 計測方式 | |
| 向き | |||
| 建物構造 | 木造 | ||
| 間取内容 | |||
| 駐車場 | 取引態様 | 仲介 | |
| 引渡/入居時期 | 相談 | 現況 | 居住中 |
| 総区画数(戸数)/空き区画数(戸数) | 1 | ||
| 地目 | 宅地 | 用途地域 | 第一種低層住居専 |
| 都市計画 | 市街化区域 | 地勢 | 平坦 |
| 建ぺい率 | 40% | 容積率 | 80% |
| 土地権利 | 所有権 | 接道状況 | 一方 |
| 周辺環境 | |||
| 設備・条件 | |||
| 物件番号 | |||
Loading...
※物件掲載内容と現況に相違がある場合は現況を優先と致します。


















